102 REGENCY DRIVE - $174,900.00


 Image Gallery   Virtual Tour   Request More Information   Mortgage Calculator   Download Listing Brochure   Return to Listings  

Property Specs

Price$174,900.00
CityChatham, ON
Bed / Bath2 / 1 Full
Address102 REGENCY DRIVE
Listing ID26001181
StyleMobile Home
ConstructionAluminum/Vinyl
FlooringCushion/Lino/Vinyl, Laminate
Land Size0 X LEASED LAND
StatusFor sale

Extended Features:

Features Double width or more driveway, Finished Driveway, Front DrivewayOwnership LeaseholdAppliances Dryer, Refrigerator, Stove, WasherCooling Central air conditioningHeating Forced air, FurnaceHeating Fuel Natural gas

Details:

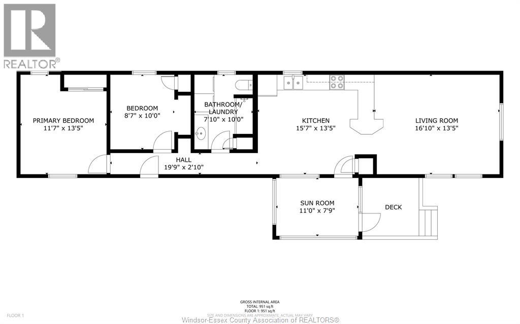
Updated, extremely well kept, move-in ready AND affordable! This large 2 bdrm home features updated big & bright eat-in kit, big liv rm w/soaring cathedral ceilings, primary w/big closet, large 2nd bdrm, spacious 3pc bath w/laundry, plus sunroom perfect for morning coffee or evening wine. 2nd big deck for outside lounging, large shed w/electric, great for storage, driveway for 2 cars. Bonus: all apps included, central air 2024, no rear neighbours) and immediate possession avail! Land rent covers prop tax, garbage collection, and snow removal on main roads. (id:4555)
LISTING OFFICE:
RE/MAX Preferred Realty Windsor, Krista Klundert

Comments / Live Discussion


Loading...